首页 > 钢材网 > H型钢

广东省HEA欧标H型钢 HEA100 规格型号尺寸图解

  • 价格:4250元/吨
  • 产地:莱钢
  • 品牌:进口
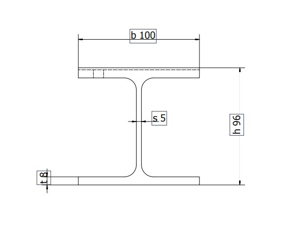
  • 型号:96*100*5*8
  • 规格:HEA100
  • 联系:徐文忠 0757-28339760 18321850356
              联系我时请告知是在建材采购网看到的
  • 公司:上海铸然供应链(集团)有限公司
  • 产品介绍

    上海铸然供应链(集团)有限公司-外标型钢一站式采购平台

    规格名称:HEA欧标H型钢
    规格型号:HEA100
    规格尺寸:96*100*5*8
    腰宽:h=96
    腿宽:b=100
    腰厚:s=5
    腿厚:t=8
    米重:16.7KG/m
    公差执行标准:EN10025-2:2004 EN10034:1993
    可提供材质:S235JR/S235J0/S275JR/S275J0/S355JR/S355J0/S355J2/S355NL/S355ML......


    主营:美标型钢、英标型钢、欧标型钢、日标型钢、澳标型钢、耐低温型钢、轻钢结构、重钢结构、钢结构工程。

    HEA欧标H型钢规格型号米重表
    材质:S235/S275/S355/S460
    公差执行标准:EN10034:1997 EN10163-3:2004
      名称      规格         型号              米重
    欧标H型钢  HEA100   型号96x100x5x8      米重16.7KG
    欧标H型钢  HEA120   型号114x120x5x8     米重19.9KG
    欧标H型钢  HEA140   型号133x140x5.5x8.5  米重24.7KG
    欧标H型钢  HEA160   型号152x160x6x9     米重30.4KG
    欧标H型钢  HEA180   型号171x180x6x9.5    米重35.5KG
    欧标H型钢  HEA200   型号190x200x6.5x10   米重42.3KG
    欧标H型钢  HEA220   型号210x220x7x11    米重50.5KG
    欧标H型钢  HEA240   型号230x240x7.5x12   米重60.3KG
    欧标H型钢  HEA260   型号250x260x7.5x12.5  米重68.2KG
    欧标H型钢  HEA280   型号270x280x8x13     米重76.4KG
    欧标H型钢  HEA300   型号290x300x8.5x14   米重88.3KG
    欧标H型钢  HEA320   型号310x300x9x15.5   米重97.7KG
    欧标H型钢  HEA340   型号330x300x9.5x16.5  米重105KG
    欧标H型钢  HEA360   型号350x300x10x17.5   米重112KG
    欧标H型钢  HEA400   型号390x300x11x19    米重125KG
    欧标H型钢  HEA450   型号440x300x11.5x21   米重140KG
    欧标H型钢  HEA500   型号490x300x12x23    米重155KG
    欧标H型钢  HEA550   型号540x300x12.5x24   米重166KG
    欧标H型钢  HEA600   型号590x300x13x25    米重178KG
    欧标H型钢  HEA650   型号640x300x13.5x26   米重190KG
    欧标H型钢  HEA700   型号690x300x14.5x27   米重204KG
    欧标H型钢  HEA800   型号790x300x15x28    米重224KG
    欧标H型钢  HEA900   型号890*300*16*30     米重252KG
    欧标H型钢  HEA1000  型号990*300*16*21     米重 272KG

    HEA欧标H型钢是一种新型经济建筑用钢。HEA欧标标H型钢截面形状经济合理,力学性能好,轧制时截面上各点延伸较均匀、内应力小,与普通H字钢比较,具有截面模数大、重量轻、节省金属的优点,可使建筑结构减轻30-40%;又因其腿内外侧平行,腿端是直角,拼装组合成构件,可节约焊接、铆接工作量达25%。常用于要求承截能力大,截面稳定性好的大型建筑(如厂房、高层建筑等),以及桥梁、船舶、起重运输机械、设备基础、支架、基础桩等。

    邮箱:xuwenzhong@shzhuran.
    地址:山东省临沂市河东区206国道西

    地址:广东佛山乐从钢铁世界大道商务楼A座511室

    地址:上海市宝山区江杨南路2500弄智慧大厦三楼303室
    对该产品咨询
    咨询内容
    联系方式
    联系人 
    H型钢相关产品
    更多H型钢产品 >>