首页 > 管件网 > 检查井

海绵城市建设中雨水樽、雨水罐的应用

  • 价格:电询
  • 产地:江苏常州
  • 品牌:欧铂瑞
  • 型号:OBR-YS-750
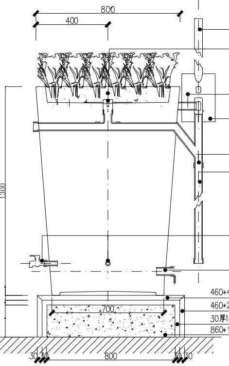
  • 规格:800*900*1300mm
  • 联系:张世福 18961194536 18961437998
              联系我时请告知是在建材采购网看到的
  • 公司:江苏欧铂瑞海绵城市建设科技有限公司
  • 产品介绍
    雨水收集罐作用:
    将城市分成若干小区和单元,对雨水在若干小区和单元就地实现分散、 蓄留和初步净化,强调雨水的可持续利用,以及通过其它立体多层次功 能分流、分滞,从而减缓城市部分供排水压力。
    雨水收集灌便是在遵循利用现有城市雨水管路,在生态*的原则
    前提下,对雨水资源*大限度的净化利用和生态环境保护。对现有的雨 水排水系统进行“减负”、“补充”和“扩充”,*大程度地发挥城市 海绵净、渗、蓄水功能。 “一片天,一片地”,追寻自然的气息,高效管理雨水,是我们不 倦的探索,小智慧亦能铸就城市奇迹。
    对该产品咨询
    咨询内容
    联系方式
    联系人 
    检查井相关产品
    相关推荐
    更多检查井产品 >>