首页 > 工程机械网 > 除尘器

电改袋除尘器方案

  • 价格:电询
  • 产地:江苏盐城
  • 联系:李亚利 18051685900
              联系我时请告知是在建材采购网看到的
  • 公司:盐城市盐富环保设备有限公司
  • 产品介绍
    电改袋除尘器适用范围:
            电除尘难以高效收集的高比阻、特殊煤种等烟尘的净化处理。
            要求<50mg/m3排放的燃爆锅炉烟进化。
            尤其适合旧电器除尘器的增效改造。
            由于环保标准的不断提高,许多在役的电收尘器已无法满足新的粉土排放要求,特别是许多收尘器采用干式脱硫,烟气排放更是无法达标。  
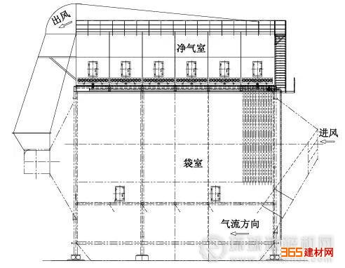
    电改袋除尘器改造方案及要点:
            采用行喷脉冲布袋收尘器技术将在役的电除尘器改选成胁冲长布袋除尘器
            保留原来的电收尘基础和外壳进出口,灰斗以及排放系统并改造成的袋式除尘单元。
            拆除原除尘器顶部保温箱,高压电源,内部阴极系统,振打装置等。
            增设袋陈尘器上箱体、花板、喷顶装置、滤袋、袋阀、同时对进口烟道进行局部改造。
            根据情况更换排风机确保系统阻力。
    电改袋除尘器结构特点:
            前级电除尘+后级布袋除尘按串联式布置,共用同一壳体,两级除尘方式之间采用了特殊设计的分流引流装置。具有区域划分清楚、技求成熟、窖易维护等优点。
    对该产品咨询
    咨询内容
    联系方式
    联系人 
    除尘器相关产品
    更多除尘器产品 >>