首页 > 家居网 > 装修

混搭风格,也能享受都市浪漫,北辰定江洋210 平装

  • 价格:电询
  • 联系:吴经理 18390881556
              联系我时请告知是在建材采购网看到的
  • 公司:湖南米兰大宅设计工程有限公司
  • 产品介绍

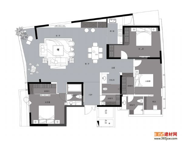
    1、楼盘名称:北辰定江洋4栋305
    2、风格:混搭
    3、面积:210 m2
    4、工程造价:半包:22万
    5、设计师:米兰大宅一级设计师——肖勇
    6、设计理念:享受都市浪漫
    7、户型:3室+2厅+2卫+1厨
    8、米兰简介:
    米兰大宅装饰公司成立于2011年,以为追求品质生活的客户服务的高端设计品牌,为自身的品牌定位,致力服务于湖南地区高端客户。以“梦想、踏实、真诚、勤奋、责任、创新、共享”为价值观,在湖南地区以完整、精湛的设计、施工流程,优质贴心的服务体验、新颖环保的主材产品、创新自主的品牌精神获得广大业主朋友的肯定。并且拥有自己的三大核心产品优势:采用的材料及工艺是行业**的【德系工艺】;工程管理采用【第三方施工监理公司验收管理】方式;并且拥有自己的【云工地】,集团统一化管理,其采用前店后厂模式,可以为客户提供放心的全房全装服务。
    对该产品咨询
    咨询内容
    联系方式
    联系人 
    装修相关产品
    更多装修产品 >>