首页 > 管件网 > 防水套管

防水套管,橡胶接头,金属补偿器

  • 价格:电询
  • 产地:泊头
  • 型号:各种口径
  • 规格:各种型号
  • 联系:刘静 0317-8281281 13333079970
              联系我时请告知是在建材采购网看到的
  • 公司:泊头市鑫龙波纹管制造厂
  • 产品介绍
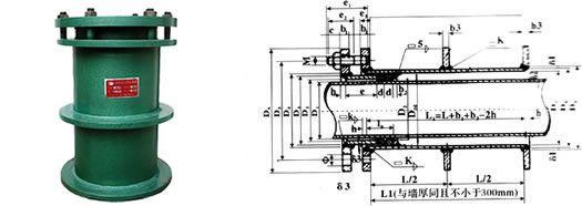
    防水套管适用于有地震设防要求的地区、管道穿墙处承受振动和管道伸缩变形,或有严密防水要求的构(建)筑物。当穿墙管与泵或增压设备的进出管道连接时,宜在连接处设置

    我厂生产的防水套管是根据S312建筑科学研究院建筑标准设计研究所研制制造。

    作用说明:1、柔性防水套管一般适用于管道穿过墙壁之处受有振动或有严密防水要求的构筑物。2、刚性防水套管一般适用于管道穿过墙壁之处要求一般防水的构筑物。3、柔性及刚性防水套管穿墙处之墙壁,如遇非混凝土墙壁时应改用混凝土墙壁,而且必须将套管一次浇固于墙内。

    使用范围:防水套管适用于建筑、电力、石油化工、钢铁、自来水、污水处理等单位
    对该产品咨询
    咨询内容
    联系方式
    联系人 
    防水套管相关产品
    更多防水套管产品 >>